一、凹版印刷機如何在上走料時實現正反面印刷
在凹版印刷領域,有很多承印材料都要求在連續印刷多種顏色后,在不停機的情況下,在最后一個印刷單元給承印材料的反面涂布一次(或稱作滿版印刷)。根據連線型凹版印刷機本身的結構形式,如果要在上走料的情況下使最后一個色組實現反面印刷,要在最后這個色組與前一個色組之間放置一套機械裝置,此裝置即是俗稱的翻印架,能使承印材料本來正面朝下變成正面朝上,如圖一(正視圖)所示,其中:雙點劃線是承印材料的運行路線;另外,如果最末這個色組沒有進行反面印刷作業,那么承印材料的運行路線只要不經過翻印架,該色組就能夠與其他色組一樣進行正面印刷。
要實現這個功能,最重要的部件就是能使承印材料本來正面朝下變成正面朝上的翻印架結構。
一、翻印架結構主要功能件如下:
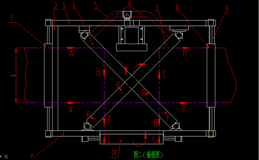
1、過度輥筒(一) 2、前端板 3、翻印左墻板 4、翻印輥筒(一 ) 5、旋渦式氣泵 6、翻印輥筒進氣管 7、翻印輥筒(二) 8、過度輥筒(三) 9、后端板 10、過度輥筒(二) 11、翻印右墻板

圖1 翻印架結構及承印材料(塑料薄膜)
運動線路原理圖(正視圖)

圖2 翻印架結構及承印材料(塑料薄膜)
運動線路原理圖(俯視圖)
二、運動線路原理以及主要功能件的作用
如圖1所示,雙點劃線代表塑料薄膜,塑料薄膜分為正面與反面。
把塑料薄膜在翻印架結構上的運動線路中所處的四個不同水平高度、相互平行的平面按從低到高分別定義為A、B、C、D四個運動平面。如圖2所示,兩條平行的雙點劃線代表塑料薄膜的邊緣,L代表塑料薄膜的寬度,與各字母最接近的箭頭方向即為該運動平面上塑料薄膜的運動方向。
從圖1的左邊可以看出,塑料薄膜的正面緊貼印刷版輥、反面緊貼壓印膠輥進行的印刷稱為正面印刷,從圖1的右邊可以看出,塑料薄膜的反面緊貼印刷版輥、正面緊貼壓印膠輥進行的印刷稱為反面印刷。
翻印架結構由前端板、翻印左墻板、后端板、翻印右墻板連結在一起形成牢固的四邊形框架;然后其它的功能件及其支承輔助件全部安裝在此四邊形框架內;因此整個翻印架結構是一個相對獨立的結構單元,它可以安裝在任意兩個相鄰印刷組之間。當然,一般情況是安裝在最后色組及其前一個色組之間。
在翻印架結構里面,過度輥筒(一)、過度輥筒(二)、過度輥筒(三)均是轉動件,輥筒表面的線速度與塑料薄膜的運動速度一致。而翻印輥筒(一)及翻印輥筒(二)它們的軸線與塑料薄膜的運動方向成45°,如果旋轉,則會因為輥筒表面的線速度與塑料薄膜的運動方向不一致,造成塑料薄膜的運動狀態不穩定,無法進行印刷作業。
因此,兩翻印輥筒必須是固定的。由于塑料薄膜繞行于翻印輥筒表面,則膜與輥筒表面必然存在摩擦,此摩擦會損傷膜表面及造成膜張力不穩定,影響印刷質量?;诖朔N原因,必須使塑料薄膜表面與翻印輥筒表面在實際應用中盡量趨向零摩擦狀態。
為此,在制造翻印架時,應采取兩項措施:
一是翻印輥筒表面制作為光滑鏡面,可以通過零件表面處理達到這一效果。
二是在翻印輥筒與塑料薄膜接觸的表面制造一個空氣流動層。首先在翻印架上增加旋渦式氣泵及翻印輥筒進氣管(圖2細實線表示);然后在翻印輥筒與塑料薄膜接觸的表面(半圓柱面)加工按一定規律分布的排氣孔,見圖3P-P局部剖視圖。由旋渦式氣泵輸出空氣經翻印輥筒進氣管流入翻印輥筒內腔,再經排氣孔成為具有較大壓力的氣流,同時由于在印刷時,塑料薄膜本身處于繃緊狀態,因此氣流流出翻印輥筒時在塑料薄膜反作用下,在翻印輥筒與塑料薄膜接觸的表面就會形成一個空氣流動層,使塑料薄膜表面與翻印輥筒表面在實際應用中盡量趨于零摩擦狀態。
從圖1看到,塑料薄膜經過正面印刷后,首先接觸過度輥筒(一)并繞貼其表面,同時驅動其旋轉而自身前進,到達過度輥筒(一)的最高點后,塑料薄膜處在A運動平面內,此時薄膜正面朝下,由圖2看出運動方向朝右;薄膜繼續前進,接觸翻印輥筒(一)并繞行于其表面,到達翻印輥筒(一)的最高點后,塑料薄膜處在B運動平面內,此時薄膜正面朝上,因為翻印輥筒(一)與過度輥筒(一)夾角為45°,所以薄膜由A運動平面內繞過翻印輥筒(一)進入B運動平面內,其運動方向變化了90°;再觀察圖2,薄膜運動方向變化了90°后,繼續向前,接觸過度輥筒(二)并繞貼其表面同時驅動其旋轉而自身前進,到達過度輥筒(二)的最高點后,塑料薄膜處在C運動平面內,此時薄膜正面再次朝下,其運動方向變化了180°,即是與B運動平面內的運動方向相反;繼續觀察圖2,塑料薄膜處在C運動平面內繼續向前運動,接觸翻印輥筒(二)并繞行于其表面,到達翻印輥筒(二)的最高點后,塑料薄膜處在D運動平面內,此時薄膜正面最終朝上,因為翻印輥筒(二)與過度輥筒(二)夾角也為45°,所以薄膜由C運動平面內繞過翻印輥筒(二)進入D運動平面內,其運動方向也變化了90°,此時塑料薄膜的運動方向已經恢復為剛進入翻印架(即A運動平面)的運動方向;塑料薄膜處在D運動平面內繼續前進,接觸過度輥筒(三)并繞貼其表面同時驅動其旋轉而自身前進,最后離開翻印架進入下一個印刷組。

圖3 P-P局部剖視圖
從圖1可以看出,塑料薄膜處在D運動平面內至過度輥筒(三)到最后離開翻印架進入下一個印刷組時,其正面一直朝上,而在此時,塑料薄膜的反面緊貼印刷版輥、正面緊貼壓印膠輥,已經形成反面印刷。
綜上所述,在上走料時,操作者如果不需要最后一次的反面涂布,則可以讓塑料薄膜直接進入印刷組正面印刷;如果需要反面涂布,則只需先經過翻印架再進入印刷組就可實現反面印刷工藝。
三、凹版印刷機在下走料時如何實現正反面印刷
在最近十多年的時間內,有相當一部分承印材料,都要求在連續印刷多種顏色后,在不停機的情況下,再在承印材料的反面再連續印刷一種或多種顏色,根據連線型凹版印刷機本身的結構形式,如果要在下走料時使某個色組實現反面印刷,那么該色組的印刷版輥的旋轉方向應該與前一個色組的印刷版輥的旋轉方向相反,如圖a所示:細實線表示正面印刷時承印材料的運行路線,虛線表示反面印刷時承印材料的運行路線;另外,如果該色組沒有進行反面印刷作業,該色組還必須能夠與其他色組一樣進行正面印刷,這就意味著該色組的印刷版輥既可正向旋轉,也可反向旋轉。這就需要能有正反轉輸出軸的齒輪傳動結構。


圖4 正反轉齒輪傳動結構示意圖
其中,1為離合手輪,2為離合推桿,3為反向齒輪,4為蓋板,5為離合齒輪,6為正反轉輸入軸,7為主動齒輪,8為軸承,9為從動齒輪,10為正反轉箱體,11為正反轉輸出軸。
1、傳動原理
整個傳動結構密封在由蓋板及正反轉箱體組成的齒輪箱內,齒輪箱起到支承傳動件、儲油潤滑、防塵等作用。
當離合齒輪處于A-A剖視圖所示位置時,正反轉輸入軸驅動主動齒輪正方向轉動,主動齒輪與離合齒輪嚙合,讓離合齒輪反方向轉動,離合齒輪與反向齒輪嚙合實現反向齒輪正方向轉動,反向齒輪與從動齒輪嚙合實現從動齒輪反方向轉動,最后由從動齒輪驅動正反轉輸出軸反方向轉動,從而使印刷版輥反向旋轉,達到反面印刷的工藝要求。
由于正反轉輸入軸左端有安裝于從動齒輪內部的軸承作支承,所以正反轉輸入軸能相對從動齒輪轉動。當離合齒輪從A-A剖視圖所示位置向左滑動直至與反向齒輪脫離嚙合時,正反轉輸入軸驅動主動齒輪正方向轉動,主動齒輪與離合齒輪嚙合實現離合齒輪反方向轉動,離合齒輪與從動齒輪嚙合實現從動齒輪正方向轉動,最后由從動齒輪驅動正反轉輸出軸正方向轉動,從而使印刷版輥正向旋轉,達到正面印刷的工藝要求。
從圖4中的K-K剖視圖可以看出,操作者只需用手推拉離合手輪,就可使離合推桿左右移動,從而促使離合齒輪左右滑動,而離合齒輪傳動位置的改變,就會改變齒輪箱內的傳動,最后達到正反轉輸出軸能夠正反兩方向轉動,從而使印刷版輥正反兩方向旋轉,達到正反面印刷的工藝要求。